A GUST OF WIND
home
architecture
objects
contact
A GUST OF WIND
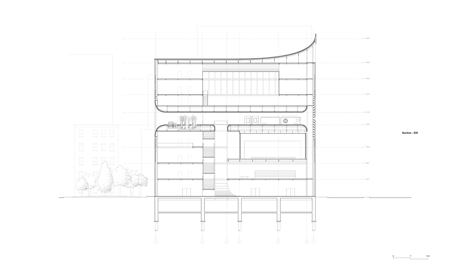
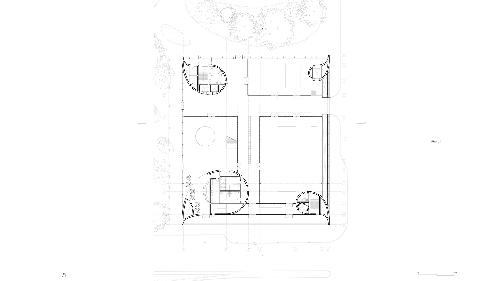
The environmental aspects of buildings must be perceived and understood.
Back
Next